Heijde Park
In de nieuwe wijk Waalre Noord komen 38 sociale huurwoningen. Deze woningen worden gebouwd in Heijde Park, een deelgebied van Waalre Noord. De biobased Horizon woningen worden gebouwd door aannemer Heijmans. De woningen worden prefab gebouwd, dit betekent dat de woningen in de fabriek worden gemaakt en op de bouwplaats in elkaar worden gezet. De bouwtijd is daardoor korter en de kosten zijn lager.
De ligging van het project
Heijde Park ligt in het noordelijke deel van Waalre, onder de Heistraat. De woningen komen in een groene, bosrijke omgeving in een rustige buurt die speciaal is ontworpen met veel aandacht voor de natuur en de omgeving. De woningen sluiten aan op de dorpse uitstraling van Waalre.
Informatie over de woningen
In Heijde Park realiseren wij 38 rijwoningen, aannemer Heijmans bouwt deze voor ons. De woningen zijn geschikt voor verschillende doelgroepen, jong en oud. De woningen zijn ongeveer 100m2 en hebben 2 slaapkamers. Ze worden duurzaam gebouwd, zijn goed geïsoleerd en bijna energie neutraal en daarmee klaar voor de toekomst. De precieze indeling en afmetingen zijn op dit moment nog niet bekend. Zodra dit bekend is, vind je de informatie op deze pagina.
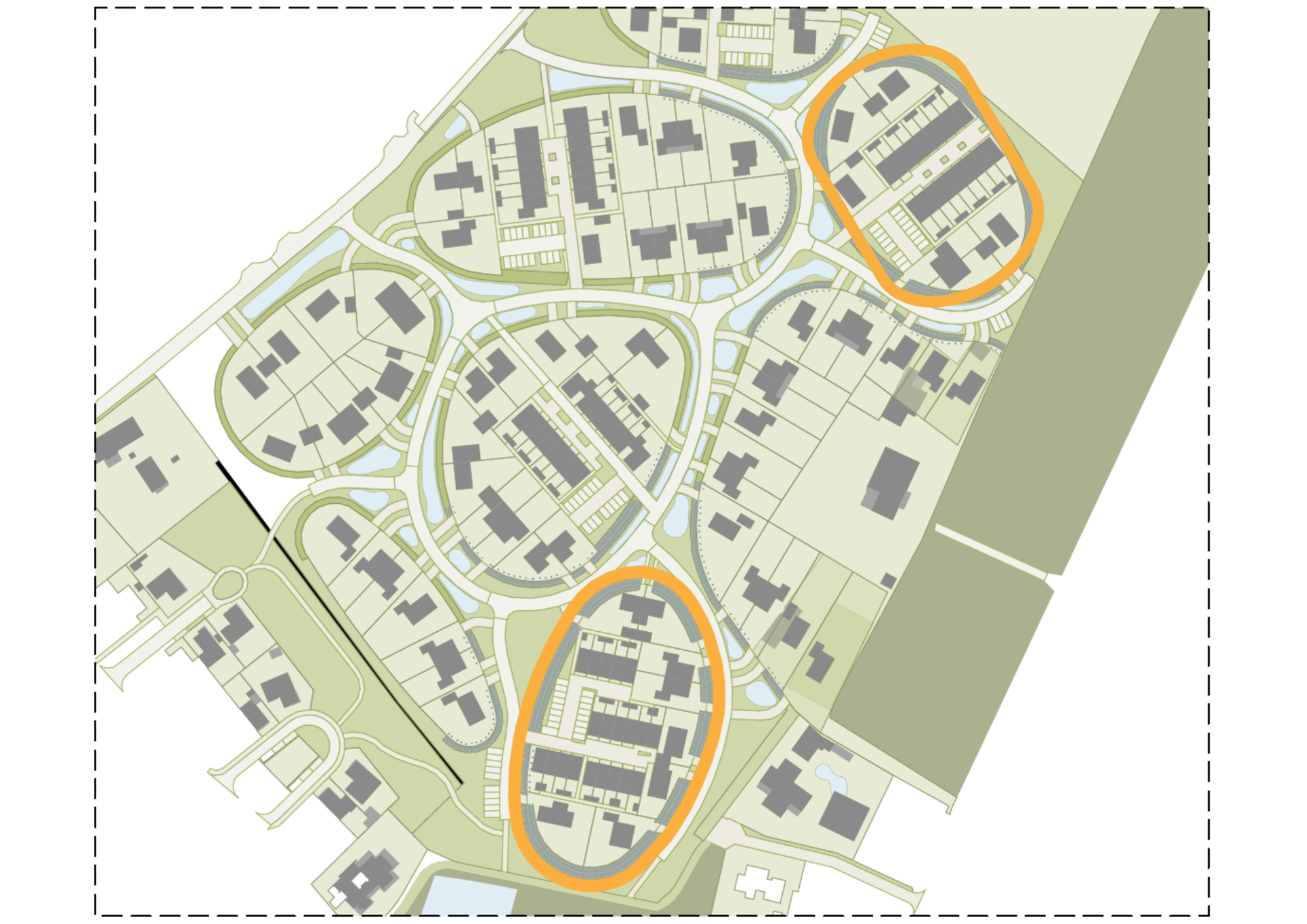
Op de foto zie je het plangebied. In het oranje kader zijn veld 4 en 7 gemarkeerd, daar komen de 38 sociale huurwoningen van ons.

De huurprijzen en servicekosten
De huurprijzen zijn op dit moment nog niet bekend. Zodra we deze weten, vind je ze terug op deze pagina. Huurtoeslag is mogelijk, afhankelijk van je inkomen.
De planning en belangrijke data
De voorbereidingen voor de bouw zijn al gestart. In opdracht van de gemeente wordt het terrein nu bouwrijp gemaakt. We verwachten dat de bouw begin 2026 start. De oplevering van de woningen is naar verwachting midden 2026.
Vind je het leuk om op de hoogte te blijven van dit nieuwbouwproject?
Meld je dan aan als belangstellende door te klikken op de groene button 'Meld je aan als belangstellende'. Je vindt de button op deze pagina. Je ontvangt dan ook een e-mail zodra de verhuur begint en de woningen worden geadverteerd op Wooniezie.nl.
Belangrijke stap: inschrijven als woningzoekende
Als je bent aangemeld als belangstellende, dan sta je niet ingeschreven voor een woning van dit project. Daarvoor moet je als woningzoekende zijn ingeschreven op Wooniezie. Dat kun je op www.wooniezie.nl gratis doen.